明渠拱桥仅供参考 - 【拱桥图纸】 - 道桥网-桥梁之家—打造桥梁行业最大、最专业的桥梁资料和技术交流基地!道桥之家网! - daoqiao.net
hxybdf
桥梁工程师
桥梁工程师
  • 金币10枚
  • 威望1点
  • 贡献值35点
  • 桥币0个
  • RMB0元
阅读:11309回复:16

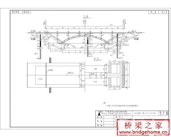
明渠拱桥仅供参考

楼主#
更多 发布于:2009-12-07 09:19
明渠拱桥仅供参考
美男,帅哥
backformer
管理员
管理员
  • 金币77129枚
  • 威望446点
  • 贡献值428点
  • 桥币218个
  • RMB15520元
  • 终身成就奖
  • 特殊贡献奖
  • 社区居民
1楼#
发布于:2009-12-07 09:23
怎么没有见图纸,请附上!谢谢!
1、不要问论坛能为你做什么,而要问你为论坛做了什么; 2、一个好的站点是靠大家的努力建成的,懒于回答别人的人也不会得到别人的回答; 3、如果你发现你论坛金币不够,下载不了东西,那就证明你很不地道,从来不知道奉献,只懂得索取。
hxybdf
桥梁工程师
桥梁工程师
  • 金币10枚
  • 威望1点
  • 贡献值35点
  • 桥币0个
  • RMB0元
2楼#
发布于:2009-12-07 09:23
01
附件名称/大小 下载次数 最后更新
明渠桥.part01.rar (977KB)  6 2009-12-07 09:23 售价10金币[记录]
明渠桥.part02.rar (977KB)  13 2009-12-07 09:23
美男,帅哥
hxybdf
桥梁工程师
桥梁工程师
  • 金币10枚
  • 威望1点
  • 贡献值35点
  • 桥币0个
  • RMB0元
3楼#
发布于:2009-12-07 09:26
03
附件名称/大小 下载次数 最后更新
明渠桥.part03.rar (977KB)  10 2009-12-07 09:26
美男,帅哥
hxybdf
桥梁工程师
桥梁工程师
  • 金币10枚
  • 威望1点
  • 贡献值35点
  • 桥币0个
  • RMB0元
4楼#
发布于:2009-12-07 09:27
04
附件名称/大小 下载次数 最后更新
明渠桥.part04.rar (977KB)  9 2009-12-07 09:27
美男,帅哥
hxybdf
桥梁工程师
桥梁工程师
  • 金币10枚
  • 威望1点
  • 贡献值35点
  • 桥币0个
  • RMB0元
5楼#
发布于:2009-12-07 09:30
05
附件名称/大小 下载次数 最后更新
明渠桥.part05.rar (977KB)  7 2009-12-07 09:30
美男,帅哥
hxybdf
桥梁工程师
桥梁工程师
  • 金币10枚
  • 威望1点
  • 贡献值35点
  • 桥币0个
  • RMB0元
6楼#
发布于:2009-12-07 09:34
06
附件名称/大小 下载次数 最后更新
明渠桥.part06.rar (977KB)  6 2009-12-07 09:34
美男,帅哥
hxybdf
桥梁工程师
桥梁工程师
  • 金币10枚
  • 威望1点
  • 贡献值35点
  • 桥币0个
  • RMB0元
7楼#
发布于:2009-12-07 09:36
07
附件名称/大小 下载次数 最后更新
明渠桥.part07.rar (977KB)  7 2009-12-07 09:36
美男,帅哥
hxybdf
桥梁工程师
桥梁工程师
  • 金币10枚
  • 威望1点
  • 贡献值35点
  • 桥币0个
  • RMB0元
8楼#
发布于:2009-12-07 09:46
08
附件名称/大小 下载次数 最后更新
明渠桥.part08.rar (977KB)  7 2009-12-07 09:46
美男,帅哥
hxybdf
桥梁工程师
桥梁工程师
  • 金币10枚
  • 威望1点
  • 贡献值35点
  • 桥币0个
  • RMB0元
9楼#
发布于:2009-12-07 09:47
09
附件名称/大小 下载次数 最后更新
明渠桥.part09.rar (977KB)  6 2009-12-07 09:47
美男,帅哥
上一页
游客


返回顶部