|
阅读:26434回复:35
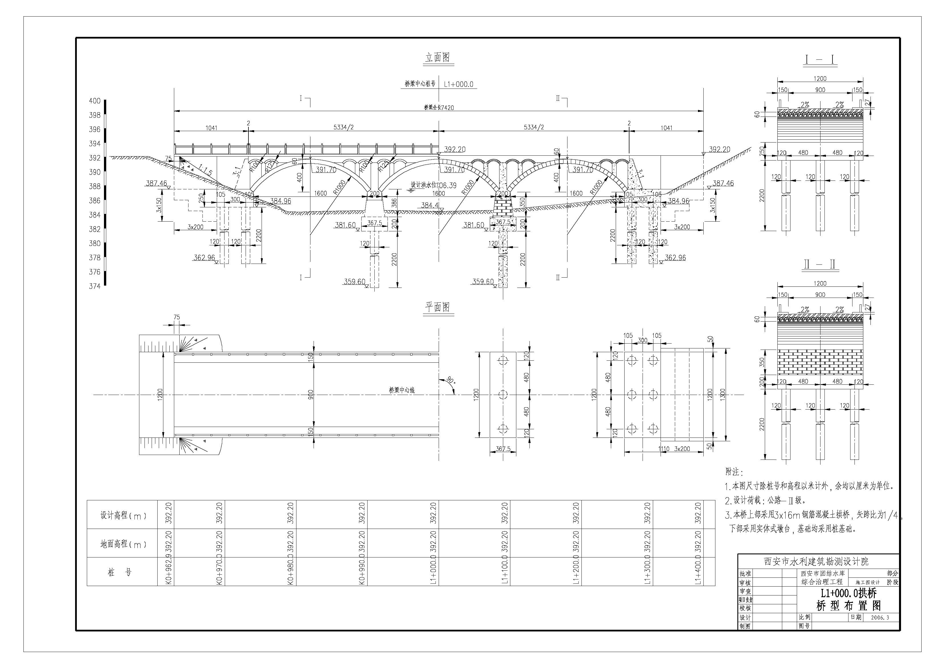
3-16m空腹式拱桥
3-16m空腹式拱桥图纸
|
|
|
|
1楼#
发布于:2018-05-28 15:35
加个介绍就好了,不知道具体情况。
|
|
|
7楼#
发布于:2012-12-29 13:35
下载看看,学习一下,谢谢楼主!
|
|
|
8楼#
发布于:2012-12-26 09:21
图片:01-bzt.dwg Model (1).jpg |
|
上一页
下一页
